来自OFIS Arhitekti对gooood的分享。更多关于他们:OFIS Arhitekti on gooood。
Appreciation towards OFIS Arhitekti for providing the following description:
作为斯洛文尼亚最古老的音乐学校之一,卢布尔雅那音乐和芭蕾舞学院的历史可追溯到1919年。该学院紧邻许多历史建筑和重要古迹,项目团队希望通过整体改造来在原有的体量和结构内,提升现有校园设施的技术性特征。
20世纪斯洛文尼亚杰出建筑师Jože Plečnik的代表作所在的两条街道,将学院大楼包围起来。国家大学图书馆作为他最重要的作品之一,则位于Gosposka街的入口对面。这样丰富而珍贵的独特历史氛围,使得本次项目的建筑师们面临着将建筑与周围历史环境相协调的挑战。
Ljubljana’s Conservatory of Music and Ballet is one of the oldest music schools in Slovenia, dating back to 1919. Located in the immediate proximity of many historical buildings and other important monuments, the overall renovation aimed to improve the existing program and some technical features of the school’s facilities, while preserving the original volume and structure.
Two streets, featuring significant examples of the work of Slovenia’s greatest 20th century architect, Jože Plečnik, enclose the building. One of his more prominent works – the National University Library – is situated across the entrance from Gosposka Street. With that said, the architects undertook several challenges of contextualizing the historical aspects of the surroundings within the building as well.
▼项目及周边环境概览,project and surrounding environment overview © Tomaz Gregoric
本次改造旨在扩大实践练习和课堂教育的多个空间范围。整个项目包括四处较大的建筑干预:在中庭,对一个不曾使用的现有露台进行改造;屋顶扩建后,提供了额外的教室和办公空间;入口楼梯现在与整个建筑相连;还有一间可以容纳更大规模演出的新音乐厅。
▼改造前的建筑状态剖面示意,sketch of the state of the building before renovation © Tomaz Gregoric
▼改造后的建筑状态剖面示意,sketch of the state of the building after renovation © Tomaz Gregoric
The whole renovation aimed to expand the repertoire of different spaces where musical education can be practiced and performed. The projects consist of four larger architectural interventions: Atrium, a renovation of a formerly non used existing terrace; Roof extension, which now provides additional classrooms and offices; Entrance staircase, now connecting the entire premises of the building, And a new concert hall with sufficient capacity to host larger performances.
▼露台改造前后,before and after terrace renovation © Tomaz Gregoric
▼改造后的入口大厅,the renovated entrance hall © Tomaz Gregoric
在一个结构简单、鲜少使用且面向内部中庭的平台区域,建筑师打造了一个带有侧边阶梯和玻璃墙的外部礼堂。这种干预标志着全新的氛围体验:拥有了外部礼堂的建筑获得了一个宽敞、开放、通风并与城市本身融为一体的空间。
▼外部礼堂结构拆解示意图,
schematic diagram of external auditorium structure disassembly © Tomaz Gregoric
In a place where a simple, rarely used terrace used to face the inner atrium, the architects arranged an external auditorium with a side staircase and a glass wall. This intervention strongly marks a new experience of the ambience, as the building with an external auditorium has acquired a large, open and airy space that merges with the city itself.
▼礼堂概览,overview of the auditorium © Tomaz Gregoric
▼玻璃幕墙与阶梯区域,glass curtain wall and stepped area © Tomaz Gregoric
▼阶梯处视角,stepped Angle of view © Tomaz Gregoric
▼玻璃墙将礼堂内外空间分隔,
glass walls separate the inside and outside of the auditorium © Tomaz Gregoric
▼半封闭创意墙体,semi-enclosed creative wall © Tomaz Gregoric
▼可供师生学习和放松的阶梯空间,
step space for teachers and students to study and relax © Tomaz Gregoric
改造的主旨是改善奥匈帝国君主时代学校相对保守的规划设置,鼓励人与人在课堂之外的健康互动。建筑师在经过一番审慎思考后,为建筑内的许多核心设施注入了新的活力,以彰显一种努力在多代艺术家和音乐家之间分享知识的美好学校形象。
The main concept of the renovation was to improve a relatively conservative program of schools stemming from the time of the Austro-Hungarian Monarchy, where the interaction between people outside of classrooms seemed detrimental. By carefully rethinking, some of the core facilities within the building the architects managed to spark new liveliness characteristic of a school that strives to share the knowledge between many generations of artists and musicians. One of the more visible overall improvements is the newly formed concert hall. With the assistance of acoustics experts, the hall has been enfolded with a wooden perforated shell in order to ensure high quality of sound, as well as to hide some of the ventilation shafts.
▼走廊顶部的创意天顶,creative zenith at the top of the corridor © Tomaz Gregoric
▼舞蹈室,studio © Tomaz Gregoric
礼堂上方的屋顶被彻底改造并安装了新的照明系统,剧院式照明装置特有的图案在礼堂一侧悬浮板的负片上重复出现。这样一来,建筑以其表现力的可能性诠释了基本的音乐结构:样本的正反面可以理解为音乐中的 “问答 “原则。
▼屋顶礼堂的结构拆解示意图,
schematic diagram of structural disassembly of the rooftop auditorium © Tomaz Gregoric
The roof above the auditorium has been significantly dematerialized as well as equipped with light fixtures. The motif of flaps characteristic of theatre light fixtures is repeated in the negative on the suspended panels on the auditorium side. In this way, architecture paraphrases the basic musical structure with its expressive possibilities: the positive and the negative of the sample can be understood as an allusion to “question and answer” principle in music.
▼礼堂概览,auditorium overview © Tomaz Gregoric
▼底层平面,ground floor plan © OFIS Arhitekti
▼一层平面,first floor plan © OFIS Arhitekti
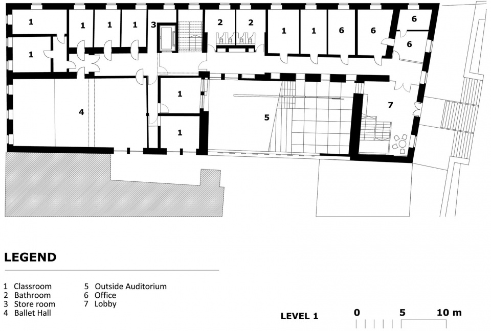
▼二层平面,second floor plan © OFIS Arhitekti
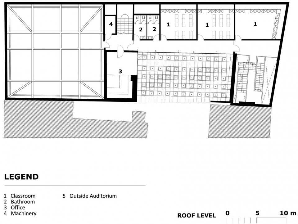
▼屋顶平面,roof plan © OFIS Arhitekti
▼多角度剖面图,sections © OFIS Arhitekti
Project name:Konservatorij za glasbo in balet Ljubljana
Investor: MOL, Mestni trg 1, Ljubljana
Client: Konservatorij za glasbo in balet Ljubljana
Location:Vegova 7, Ljubljana
Project Year:2016
Execution Year:2018 – 2020
Site Area: 2888,45 m2
Built Area:817 m2
Photo:Tomaz Gregoric
More:OFIS Arhitekti。更多关于他们:OFIS Arhitekti on gooood。


































