来自 Dietmar Feichtinger Architects 对gooood的分享。更多请至:Dietmar Feichtinger Architects on gooood
Appreciation towards Dietmar Feichtinger Architects for providing the following description:
该项目旨在对建造于19世纪的学校进行扩建和改造,使其变成一个更加开放的场所。新旧元素的对比展现在建造技术、方法以及材料的使用上,并通过旧建筑在新立面上的倒影得到进一步的凸显。项目还包括对旧工作室大楼进行翻新,使其满足新的“剧场”功能,同时与教学楼在外观上形成呼应。
The “theatre’s” particular cultural function, location and organisation in a historical building and the identity of the new school building are central to the project.
The attempt, in the 19th century, to open up the old riding school, is reflected in the new school building. It is reused and adapted in a contemporary current way. This use of contrasts – with different technologies, construction methods, materials and energy technologies – is also expressed through the reflection of the old building on the façade of the new school. This effect is reversed as soon as it gets dark, when the school building illuminates the old studio.
▼项目概览,project view ©Hertha Hurnaus
Molière工作室 | Studio Molière
入口、接待区和书店等核心功能被设置在街道一侧,清晰地指向公共空间。新的接待区后退于街道并“插入”建筑体量内部,在外侧形成一个带顶的庭院空间,可供来访者们在此停留和等待。既有的两个天花板被拆除,为空间赋予了更加开阔的感觉。
Central functions such as the entrance, reception and the bookstore, are located on the Liechtensteinstrasse side, beside and under the room, and thus clearly pointing towards the public space. The new reception area is set back from the alignment of the buildings and “inserted” in the building volume to provide the visitor with an initial view in a covered courtyard space. It is an area where people stay and wait. By removing the two existing ceilings, this space acquires a generosity that already informs the visitor of the specific function.
▼Molière工作室大楼入口空间,Studio Moliere entry ©Hertha Hurnaus
穿过接待区之后进入同样开阔的大厅空间。这是一个完全开放的场所,大面积的窗户和外露的拱顶将大量的自然光引入室内,尤其是在表演开始前的下午和傍晚时分。7.8米高的空间后方是一条通往新教学楼的通道,再往后则是原来的旧校舍。
After going through the reception area, the visitor finds the same generosity in the lobby as announced in the building’s configuration. The space is opened up to just under the roof, and the windows and their large exposed pointed arches flood the lobby with light during the day, especially in the afternoon and the evening before the start of performances. The 7.80 m high space also announces the room which is located behind. It is also a passage which provides access to the new school building and then to the old school building.
▼工作室大厅空间,Studio Moliere foyer ©Hertha Hurnaus
▼走廊,corridor ©Hertha Hurnaus
原始空间的调整 | Work in the existing room
后台与舞台被放置在同一层级,服务区域(餐饮室、后台以及设备和道具室)与大厅相连,舞台和灯光控制室可以从入口附近的接待区进入。技术设施(通风系统、洗手间、供暖和电力系统以及音响设备)均按照标准进行了改造和升级。大厅内的自助餐厅可以和后台餐饮室通过移动吧台连接在一起。剧场内部供来访者使用的洗手间设施任然保持在原地。
一座新的楼梯连接了上方的宿舍层和舞台及后台区域。阁楼设有管理员公寓和通廊,同样可以通过新的楼梯进入。
The level of the backstage is adapted to that of the stage. The service rooms (catering room, backstage, room for storing technical equipment and scenery) are located in the immediate proximity of the lobby. The stage control room with the lighting and technical control room are accessed from the reception area near the entrance. The required service facilities (ventilation, toilet facilities, heating, electricity, sound system) have been renovated and upgraded to standards. A buffet in the lobby may be fitted out with a mobile bar via the “catering” room. The toilet facilities for visitors to the theatre remain in the same place.
A new staircase connects the lodges of the upper floor to the stage and to the backstage. The caretaker’s apartment is provided for in the attic, which will thus be partly fitted up. The through-room is also located here. Access to these two spaces is via the new staircase.
▼剧场空间,Studio Moliere theatre ©Hertha Hurnaus
教学楼 | The school
在保留工作室建筑及其立面的前提下,新的教学楼被建造在工作室大楼的西南侧,并通过体量上的后退来提供新的自由活动空间。教学楼的立面反映着工作室大楼的历史立面,并通过建筑的朝向、袒露在外部的功能空间、尽量简化的细部以及夕阳般的光线氛围在场地中成为一种独特的存在。教学楼拥有清晰的东西向布局,通往教室的水平通道则正对着工作室大楼的出口。考试室和服务室位于首层的北面,起到运送和疏散人群的作用,并通过内部楼梯彼此连接。洗手间位于各楼层交通核心筒的后方,保证了空间的隐蔽性。
▼教学楼和工作室大楼的间隙,view in between the school building and the studio ©Hertha Hurnaus
Respecting the Studio building and its façade, the new school building is located to the southwest, set back to provide a new free space. Its façade reflects the Studio’s historical façade, lending the place its specific character. This characteristic is emphasised by the building’s orientation and the functions it houses, by the reduced detail of the construction of its façade and by the luminous staging of this sunset atmosphere. The school is organised in a clear east-west facing building. The horizontal access to classrooms faces the Studio building and allows students to see it at different levels. The entrance is located directly in front of the existing Studio Molière exit. The exam room and the service rooms reserved for deliveries and evacuations are located to the north of the ground floor. An internal staircase interconnects these spaces. The toilet facilities are discreetly located behind the main vertical access in the direction of the various floors.
▼扩建教学楼的走廊,Extension – corridors in between ©Hertha Hurnaus
▼扩建的教室,Extension – classroom ©Hertha Hurnaus
施工 | Construction
新教学楼采用了钢筋混凝土结构,水平天花板被支撑在喷浆混凝土立柱上,垂直交通空间以钢筋混凝土墙围合。建筑主要由两个承重结构提供支撑,分别位于西南立面和走廊与教室之间的隔墙处。走廊的天花板向外伸出。基座部分可根据未来需要在地基上进行拓展。
The new building is designed as a reinforced concrete building, with flat ceilings laid on shotcrete pillars and the reinforced concrete walls at the level of the vertical accesses. The building is supported on two levels: one on the southwest outer wall and the other in the separation wall between the corridor and the classrooms. The corridors are designed as protruding ceilings. The foundations will be based on a footing in accordance with a future assessment.
▼教学楼南立面,school building south view ©Hertha Hurnaus
立面 | Façade
建筑的立面为幕墙结构。教室和服务室的外墙采用了铝制夹芯板,并配有自动或手动控制的纺织遮阳百叶。东立面采用玻璃和铝制夹芯板相结合的幕墙,有助于调节气温。北立面的楼梯井同样以纺织百叶窗围合。
The façade is designed as a curtain wall. The classroom façade panels and service rooms are aluminium sandwich panels provided with sun protection textile blinds with automatic and manual control. The east façade is a glass façade with aluminium sandwich panels included as openings contributing to the global thermal balance. The staircase volume on the north façade is clad with a textile screen.
▼新立面反射出旧建筑的影子,the reflection of the old building on the façade of the new school ©Hertha Hurnaus
▼场地平面图,site plan ©Dietmar Feichtinger Architectes
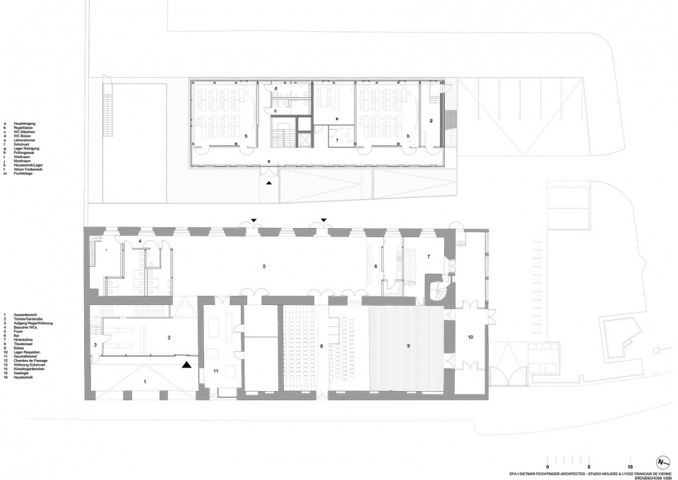
▼首层平面图,ground floor plan ©Dietmar Feichtinger Architectes
▼立面图,elevations ©Dietmar Feichtinger Architectes
▼剖面图,sections ©Dietmar Feichtinger Architectes
More: Dietmar Feichtinger Architects。更多请至:Dietmar Feichtinger Architects on gooood


























