非常感谢 balbek bureau 予gooood分享以下内容 。
Appreciation towards balbek bureau for providing the following description:
Kitayskiy Privet (China.hi)是基辅历史悠久的城市中心的一家中餐厅。设计任务是将现代极简设计与中国装饰元素、灯光相结合,同时调整中国传统设计元素,以符合当地前卫的年轻人和外国客人对现代设计的要求。
▼餐厅一层空间概览,over view of the ground floor of the restaurant
▼狭长的餐厅空间,the long and narrow restaurant space
Kitayskiy Privet (China.hi) is a Chinese restaurant in historical center of Kyiv. The task was to connect modern minimalistic design with authentic Chinese decoration elements and lighting, as well as to adjust traditional Chinese design to modern requirements of young progressive local and foreign guests.
▼入口空间,entrance area
▼空间设计采用了中国传统元素、灯光,authentic Chinese decoration elements and lighting are adopted into the design
▼仰视入口天花板,look up to the roof at the entrance
▼吧台用餐区与酒吧台-空间极简的设计手法,the bar dinning area and front bar area-minimalistic design approach in the space
▼一层主要用餐区,the main dinning area on the ground floor
▼空间细节,space detail
设计师面临的最大挑战是将内部和外部设计融入到历史文化悠久的周边环境之中。室内设计的难点在于保持真实性与现代风格之间微妙的平衡,同时还需要塑造一个供年轻人和有孩子家庭使用的舒适空间。
The biggest challenge was to tailor exterior and interior into the historical and cultural surrounding. Challenges for the interior were to keep a fragile balance of authenticity and modern style and to create a cozy space for both youth and families with children.
▼二层圆桌用餐区,round table area on the second floor
▼拥有中国传统风格天花板的空间,space with a traditional Chinese ceiling
▼年轻人和家庭都可以使用的舒适空间, a cozy space for both youth and families with children
▼灯光效果,the lighting effect
▼用布帘隔开的私密包厢空间,private dinning area separated by cloth curtain
▼洗手间,bathroom
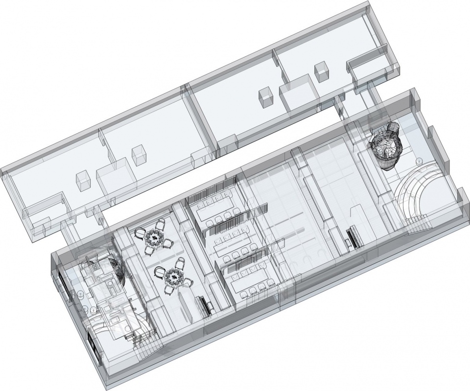
▼轴测,axonometric drawing
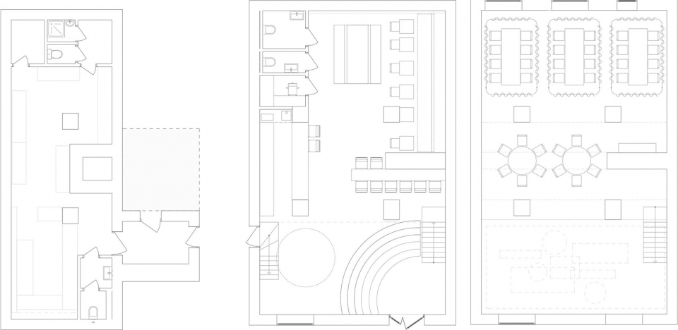
▼平面图,plan
Architects: Slava Balbek, Anna Riabova
Project Area: 230 sq.m
Project Year: 2016
Location: Kyiv, Ukraine
Photo credits: Andrey Bezuglov
More:balbek bureau






















