感谢 noa* 予gooood分享以下内容。更多关于他们:noa* on gooood.
Appreciation towards noa* for providing the following description:
由noa*设计的Südtirol之家近日在安特霍尔茨完工,凭借着深入到每一个细节的微妙变化,其设计为人们带来了一场关于南蒂罗尔省的焕然一新的嗅觉和视觉之旅。
Is it possible to taste, smell and feel a country? Yes, it is. With the finest nuances, noa* brings the Südtirol-Home’ guests in Antholz on an exciting olfactory and visual journey of discovery through South Tyrol.
▼建筑外观,exterior view ©Alex Filz
最初的设计理念来自于传统的纸牌游戏“Watten”,其中树叶、橡子、铃铛和桃心符号扮演了贯穿始终的核心元素。在室内设计中,这四个符号也作为指导概念被应用到所有的区域:树叶代表了自然和文化景观,橡子代表了生活方式和优质的产品,铃铛代表了开放与创新,桃心则代表了欢快、好客以及传统与联合。所有的这些元素都呼应了南蒂罗尔省的地域特征,并且在房屋的各种细节中被体现出来。
The initial idea of the design stems from the traditional card game “Watten” (card game), in which symbols of leaves, acorns, bells and hearts characterise the main roleplayers. These four represent the conceptual guidelines that pervade all areas of the interior. The leaf stands for the natural and cultural landscape, the acorn symbolizes the way of life and the quality products, the bell in turn indicates opening and innovation and finally the heart expresses conviviality, hospitality but also tradition and association. All of these elements correspond to the nature of South Tyrol and can be seen in a variety of precise creations.
▼入口前厅,vestibule ©Alex Filz
▼木质元素细部,wooden elements ©Alex Filz
在首层,一个大尺寸的吧台主导了整个空间,并微微偏斜于中央轴线,带来动态的感觉。柜台作为酒吧和精致的展示厨房使用,为客人们提供难忘的美食。柜台有一部分是模块化的,提供了可供多人同时烹饪或观看厨师技艺的空间。展示厨房还配有一个后台厨房、一个面向宽敞前厅的衣帽间以及必要的服务设施。
On the ground floor, a generous counter piece dominates the scenery, which is slightly turned out at the central axis, in order to bring a dynamic appearance to the space. It is equipped as a bar and as an elaborate show kitchen, where impressive meals for guests can be prepared. The counter is partly modular and offers space either to cook together or to watch as the cook masters his art. The show kitchen is accompanied by a backstage kitchen, a cloakroom facing the spacious vestibule and the necessary service units.
▼大尺寸的吧台主导了一层空间,a generous counter piece dominates the scenery on the ground floor ©Alex Filz
▼吧台细节,counter detailed view ©Alex Filz
朝向村庄广场的空间可以被用作多功能的活动空间。双层高的局部玻璃立面为空间赋予了开放性,使其能够适应各种不同的场景和使用需要。
The area facing the village square can be used diversely and playfully. The two-story partially glass façade provides a generous openness to the space and offers one to be able to host a variety of different situations.
▼一层休闲区,lounge area on the ground floor ©Alex Filz
▼空间细节,interior detailed view ©Alex Filz
▼从二层俯瞰一层休闲区,view to the lounge area from the upper floor ©Alex Filz
二层空间是用于采访和电视广播工作的区域,其外部围绕着装有金属栏杆的走廊。站在走廊上,可以通过玻璃立面欣赏到外部迷人的风景,从而将房间向更广阔的自然环境敞开。位于前方的阳台可用于举办代表性的活动。舒适性也是设计中的重要考量因素:不仅能够满足基本的就坐需求,还要营造出热情好客的氛围。
The area for interviews and journalistic work for TV and radio is located on the upper floor, which is outlined by a gallery framed with metal railing, from which there is an impressive view through the glass façade, which opens the room even further and brings nature in. The balcony in front is intended for representative events. Here, too, cosiness has top priority with inviting seating opportunities, where hospitality is the core element of the space.
▼二层空间概览,an overall view to the upper floor ©Alex Filz
▼二层休闲区,lounge area on the upper floor ©Alex Filz
传统餐厅“Stube”被设计为一个封闭的盒子,悬挂在展示厨房的上方。从外部看,由于使用了经典南蒂罗尔风格的窗帘、“Stube”灯具和木质镶板,整个盒子就如同是一个被暖光点亮的、朝向入口区域的小木屋。
The “Stube”, a traditional dining room, is a closed box hanging in the space, which hovers over the show kitchen. From the outside, the cube can already be recognized as a “Stube”, due to the typical curtains with South Tyrolean design, the “Stube” lamp and the wooden panelling in the warm light are visible through the single window, which faces the entrance area.
▼“Stube”餐厅内部,“Stube” dining room interior view ©Alex Filz
▼“Stube”灯具和木质镶板营造出温暖氛围,the “Stube” lamp and the wooden panelling in the warm light ©Alex Filz
▼从入口望向室内,view from the entrance ©Alex Filz
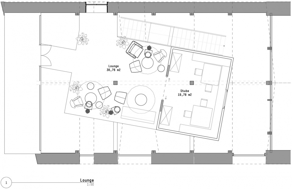
▼一层平面图,ground floor plan ©noa*
▼二层平面图,upper floor plan ©noa*
Project size: 212 m2
Completion date: 2020
Building levels: 2
Project team: noa* network of architecture
Photo: Alex Filz
More:noa* 。更多关于他们:noa* on gooood.



















