感谢 Mecanoo 对gooood的分享。更多请至:Mecanoo on gooood.
Appreciation towards Mecanoo for providing the following description:
重新诠释荷兰农场 | Reinterpreting the Dutch farm typology
这个别墅项目位于荷兰的乡村,距离Vught不远。颇具现代感的别墅体量在形式上较为创新,为当地的农场建筑环境注入了新鲜的血液。从传统意义上讲,荷兰人所谓的“hoeve”指的是围绕着院子组织的农舍和用于生活起居的空间体量。而院子作为一个中央的开放式露天空间,一方面被建筑体量包围了起来以创造出一种安全感,另一方面也对周边的景观环境开放。本案的建筑师便以这种空间布局来进行Vught别墅的设计。
The Villa in the Dutch countryside near Vught gives a contemporary twist to the local farmstead typology. Traditionally, the Dutch ‘hoeve’ is an ensemble of farmhouses and living quarters loosely clustered around a courtyard. The central open space is protected, yet open to the surrounding landscape. This spatial arrangement guided the design of the Villa.
▼别墅鸟瞰图远景,distant bird-eye’s view of the villa © Ossip Architectuur Fotografie
▼别墅鸟瞰图近景,close bird-eye’s view of the villa © Ossip Architectuur Fotografie
别墅的功能区分布在三个不同的建筑体量中,营造出一种小村庄般的观感。较低的两个体量在造型上就像是两个典型的山墙谷仓,直接与周围的花园相联系。较高的体量不仅在形式和高度上都与较低体量形成了鲜明的对比,同时也享有更为广阔的景观视野。
▼别墅俯视图远景,distant top view of the villa © Ossip Architectuur Fotografie
▼别墅俯视图近景,三个不同的建筑体量营造出一种小村庄般的观感,close top view of the villa, three distinct volumes shape to resemble the vernacular of a small village © Ossip Architectuur Fotografie
The Villa’s functions are distributed within three distinct volumes, shaped to resemble the vernacular of a small village. The two lower volumes are shaped like typical gabled barns directly connected to the surrounding gardens. The higher volume captures the view of the wide landscape and forms a striking contrast with the lower buildings.
▼别墅外观,较低的两个体量像两个典型的山墙谷仓,与较高的体量在形式和高度上形成了鲜明的对比,exterior view of the villa, the two lower volumes are shaped like typical gabled barns, contrasting with the higher volume © Ossip Architectuur Fotografie
功能布局 | Functional arrangement
最高的建筑体量内包括了位于首层空间的主卧、位于上层空间的儿童房以及一个屋顶平台。其余的两个体量中,一个在首层设置了起居室、厨房、餐厅等生活空间和一个位于西南侧的半室外露台,在二层设置了工作区和游戏室。另一个则包含了一间最多可容纳20人的烹饪工作室,为客户提供了一个举办烹饪课程、研讨会和团建活动的空间。工作室的旁边是一个车库兼储藏空间以及一个位于二层的客房套房。此外,这个烹饪工作室体量的中心位置上还设有大型的滑动门,当滑动门处于打开状态的时候,住户可以穿过建筑直接到达庭院。
本项目的设计目标是在保持传统农庄建筑彼此独立的前提下,努力将各功能空间联系在一起。为此,建筑师在草丘下设计了一个半地下走廊,将较高的建筑体量与较低体量中的起居室联系了起来。带有烹饪工作室和客房的体量则完全独立,保持了从庭院到周围景观的视野。
▼较高体量的屋顶平台,具有绝佳的景观视野,the roof terrace at the top of the higher volume with a good view © Ossip Architectuur Fotografie
The tallest element, the most prominent building, contains the master bedroom on the ground floor, children’s rooms on the upper floors and a roof terrace at the top. Of the two barns, one is furnished as a living room, kitchen with dining area and large veranda on the south-west side, with a workspace and playroom on the first floor. The other barn features a cooking studio where up to twenty people can participate in culinary classes, workshops and team-building activities led by the client. Next to the studio is a garage, storage area and a guest suite on the first floor. Large sliding doors in the centre can be opened to reveal an entrance gate to the courtyard.
The design ambition endeavoured to connect the residential functions while maintaining the detached traditional farmstead typology. To this end, a half-sunken corridor, concealed beneath a grass mound, links the taller landmark volume with the barn’s living room. The barn containing the cooking studio and guesthouse, is completely detached, maintaining sightlines from the courtyard to the surrounding landscape.
▼较低的两个谷仓般的建筑体量,生活空间体量在西南侧设有半室外露台,exterior view of the two barns, the living volume has a large veranda on the south-west side © Ossip Architectuur Fotografie
▼生活体量外观,exterior view of the living volume © Ossip Architectuur Fotografie
▼烹饪工作室体量,中心位置上设有大型的滑动门,当滑动门处于打开状态的时候,住户可以穿过建筑直接到达庭院,the cooking studio volume, large sliding doors in the centre can be opened to reveal an entrance gate to the courtyard © Ossip Architectuur Fotografie
温暖的材质和框景景观 | Warm materials and framed views
别墅在建筑细节上也参考了荷兰的“hoeve”和农庄。深青铜色的阳极氧化铝外表皮从建筑体量的立面无缝延伸到屋顶,在外观上融入了附近的农场建筑环境。窗框则采用颜色较为明亮的浅色青铜铝材料制成。所有的建筑体量都享有绝佳的景观视野。建筑师没有选择大型的落地窗,而是将窗户当作一系列相框以嵌入建筑外墙,不仅丰富了外立面,更创造出一系列框景景观。
The Villa’s construction and detailing also emulate the Dutch ‘hoeve’ or farmstead. The exterior dark bronze anodised aluminium cladding, chosen to seamlessly extend beyond the façade to the roof top, is profiled to resemble the corrugated iron roofs of nearby farm buildings. The window frames, which traditionally have a brighter colour, have a lighter bronze aluminium finish. Throughout each building, views towards the landscape are carefully framed. Rather than making wide full-height openings, windows are placed like picture frames, adorning the walls with selected images of the surrounding farmlands.
▼别墅外观,深青铜色的阳极氧化铝外表皮从建筑体量的立面无缝延伸到屋顶,相框般的窗框则采用颜色较为明亮的浅色青铜铝材料打造而成,exterior view of the villa, the exterior dark bronze anodised aluminium cladding, chosen to seamlessly extend beyond the façade to the roof top, while the picture frames-like window frames, which traditionally have a brighter colour, have a lighter bronze aluminium finish © Ossip Architectuur Fotografie
木材既具有可持续的性能,又能创造出一种温暖的氛围,因此建筑师将其作为了结构和室内装饰的材料。最终,这三个建筑体量均采用由交叉层压木材构成的木结构和欧洲银杉木内饰面。值得一提的是,这种银杉木材具有异常光滑和均匀的纹理,从而营造出一种别样的室内氛围。
Wood is used for both the structure and interior finish, a material that is at once sustainable and visually warm. The three buildings have a cross-laminated timber structure and European silver fir interior surfaces, a type of wood that has an exceptionally smooth and uniform texture.
▼烹饪工作室室内,采用交叉层压木材构成的木结构和欧洲银杉木内饰面,interior view of the cooking studio volume with a cross-laminated timber structure and European silver fir interior surfaces © Ossip Architectuur Fotografie
▼生活空间室内,木材创造出一种温暖的氛围,二层设有工作区,interior view of the living volume with a workspace on the first floor, wood creates a visual warmth © Ossip Architectuur Fotografie
▼生活空间的起居室,the living room of the living volume © Ossip Architectuur Fotografie
▼卧室空间,相框般的窗户创造出一系列框景景观,the bedrooms, photo frames-like windows provide selected images of the surrounding farmlands © Ossip Architectuur Fotografie
▼室内的木制楼梯,the interior wooden stairs © Ossip Architectuur Fotografie
▼室内楼梯和走廊,the interior stairs and corridor © Ossip Architectuur Fotografie
与其他实心的建筑结构相比,交叉层压木板在生产和加工过程中所需的能源相对较少。此外,这种木材还有助于二氧化碳的可持续性存储。别墅通过电热泵来采暖和降温,其能源性能系数(Energy Performance Coefficient,缩写为EPC)为0.26。
Compared to other solid construction methods, relatively little energy is needed for the production and processing of cross-laminated timber. It contributes to sustainable CO2 storage as well. The villa has an Energy Performance Coefficient (EPC) of 0.26 and is heated and cooled with electric heat pumps.
▼别墅夜景,night view of the villa © Ossip Architectuur Fotografie
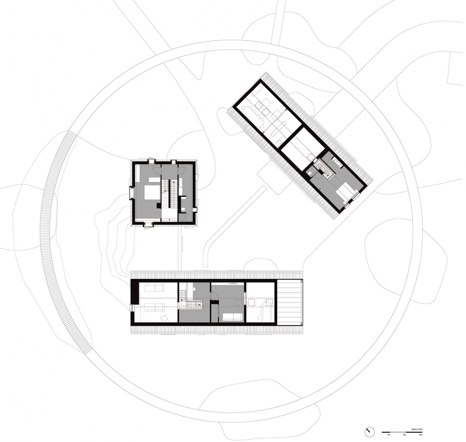
▼首层平面图,ground floor plan
▼二层平面图,first floor plan
▼三层平面图,second floor plan
▼屋顶平面图,roof plan
▼烹饪工作室体量立面图,elevations of the cooking studio volume
▼生活空间体量立面图,elevations of the living volume
▼烹饪工作室体量剖面图,sections of the cooking studio volume
▼生活空间体量剖面图,sections of the living volume
Programme: villa with cooking studio, living room, dining room, kitchen, master bedroom, two children’s bedrooms, bathroom, rooftop terrace, workspace, playroom, car and bicycle parking, guest suite, totalling 683m2
Design: 2016-2018
Realisation: 2018-2019
Client: confidential
More: Mecanoo 更多请至:Mecanoo on gooood.








































