感谢 Bundschuh Architekten 予gooood分享以下内容。更多关于:Bundschuh Architekten
Appreciations towards Bundschuh Architekten for providing the following description:
该项目位于柏林,场地在战争期间被炸毁,后来被用作柏林墙碎片的存储地。项目主体由两栋建筑组成,其中一栋作为一位艺术收藏家的住宅和展览馆,另一栋作为一幢6层公寓。它们以“零件”的形式组合起来形成一个综合建筑项目。
The project is located in Berlin on a site bombed during the war and then used as a storage site for segments of the Berlin Wall. It consists of two buildings, one housing the residence and exhibition spaces of an art collector, the other 6 floor-through apartments. It was organized in the form of a “Baugruppe”, a collective Building project.
▼场地鸟瞰,site aerial view ©Laurian Ghinitoiu
▼从街道看建筑, view the building from the street ©Laurian Ghinitoiu
项目的概念设计是在对地形的推敲与对住宅模式的研究中逐步进行的。该综合体集独立郊区建筑特点与典型的柏林公寓楼风格于一体,同时借鉴了法国Particulier酒店的设计理念。这些建筑语言被诠释在一个高密度的城市环境中,人们在这里探索公共与私人,社交与独处的界限。
The building concept is driven by our ongoing research into typologies of residential design. The complex has characteristics of free -standing suburban buildings, the typical Berlin tenement block as well as referencing the french “hotel particulier”. All are translated and compressed into a dense urban context, where they explore the boundaries between the public and the private, the social and the intimate.
▼建筑主立面,main facade of the building ©Laurian Ghinitoiu
项目由两栋围绕着公共庭院的建筑组成,打破了柏林连续屋顶封闭街区的传统。公共空间延续到场地内,行人被一个大型的灯光装置吸引入庭院,在这里,与艺术家屋主摆放的装置艺术品不期而遇。
Breaking with the Berlin tradition of closed blocks with continuous roof lines, the ensemble consists of two buildings grouped around a public courtyard. Public space expands onto the plot, a large light installation entices passers-by into the courtyard where changing installations from the owners art collection provide unexpected encounters.
▼行人被一个大型的灯光装置吸引入庭院,a large light installation entices passers-by into the courtyard ©Laurian Ghinitoiu
楼梯塔是一层水平公共空间的垂直延续。它一直延伸到公寓单元的独立前门,创造了一个半私密的公共区域。通过这个引人注目的缝隙,个人的感官被逐渐放大,完成从城市空间的大尺度到私密空间的小尺度的完美转换。
The stair tower acts as a vertical continuation of the horizontal public space on the ground level. As a semi-private communal area, it extends right up to the individual front doors of the apartment units. By crossing a noticeable gap, the concept of the individual threshold is emphasized in a seamless continuity of the urban scale to the detail scale.
▼楼梯塔是一层水平公共空间的垂直延续,stair tower acts as a vertical continuation of the horizontal public space on the ground level ©Laurian Ghinitoiu
▼楼梯与缝隙空间在周围建筑上光影,shadow of the stair tower and the gap space on other building©Laurian Ghinitoiu
▼通过缝隙,个人的感官被逐渐放大,by crossing a noticeable gap, the concept of the individual threshold is emphasized ©Laurian Ghinitoiu
“庭院与花园之间”的概念原本用来形容法国Particuliers酒店内部复杂的公共空间与私人空间的关系, 这个概念在艺术家的住宅内得到了进一步的诠释:处于屋顶的私人花园与街道上的公共庭院相互呼应,中间则是生活空间。从生活空间向外望去,可以看到各种私密程度不同的户外空间。
The concept of “entre court et jardin”, originally used to describe the complex relationships of public and private spaces in french “hotels particuliers”, is referenced again in the spatial arrangement of the collectors house: The counterpart of the public “court” on the street level is the private garden located on the roof, with the living spaces in between. From the living spaces, directed views connect to both formal and informal outdoor spaces of different degrees of privacy.
▼屋顶私人花园, private garden located on the roof, ©Laurian Ghinitoiu
每个Loft单元都有三处开窗,这三个大型落地窗将生活空间与街景连通起来。立面上的“挂毯门”既满足了通风,又可以作为紧急排烟通道使用。
Each loft unit has three open exposures, connecting the living spaces to the streetscape through large, floor-to ceiling fixed glazing. “Tapestry doors” provide both ventilation and emergency egress openings.
▼大型落地窗将生活空间与街景连通,connecting the living spaces to the streetscape through large, floor-to ceiling fixed glazing ©Laurian Ghinitoiu
空间概念的深化设计源自对场地景观与视觉关系的分析。作为景观概念的延续,人们的视线逐渐由城市尺度转向建筑尺度。在城市尺度上,项目与周边的工业烟囱以及发电厂相互呼应。居住空间的边界被引入城市的肌理中,类似于英式与中式园林中的“借景”。
The spatial concept evolves naturally out of an analysis of views the site offers. As a continuation of landscape concepts, these views are translated into the urban and architectural scale. On the urban scale, they reference and focus on the neighboring industrial chimneys and power plant structures. The spatial borders of the living spaces are shifted into the extended urban sphere, in a reference to the concept of “borrowed landscape” found in English and Chinese landscape gardens.
▼艺术收藏家住宅室内空间,interoir living space of the art collector ©Laurian Ghinitoiu
▼天窗,skylight view ©Laurian Ghinitoiu
在建筑尺度上,视觉关系定义了艺术家住宅以及相邻公寓单元内部所有空间连续性,营造了一种强烈的邻里亲近感与社区包容感。
On the architectural scale, the views define an interconnectivity between all spaces inside both the collectors house and the adjoining apartment units, thus creating a strong sense of closeness and neighborhood, of community and proximity.
▼艺术收藏家住宅内展览空间,interoir exhibition space of the art collector ©Laurian Ghinitoiu
▼室内楼梯,interoir stairs ©Laurian Ghinitoiu
▼局部二层通高空间, double height space ©Laurian Ghinitoiu
在该项目极简与抽象的表象下,是对功能与城市历史文脉的多重解读。
The project, though seemingly minimalistic and abstract, thus functions at some complexity on many levels of urban and historic contextuality.
▼夜景,night view ©Laurian Ghinitoiu
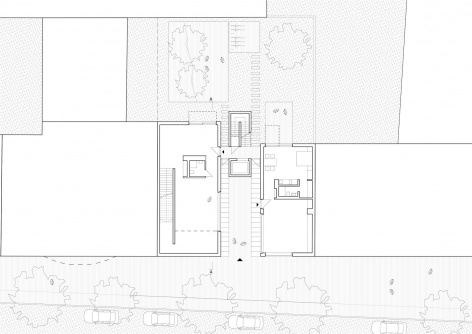
▼一层平面图,ground floor plan ©Bundschuh Architekten
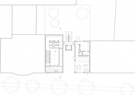
▼标准层平面图,standrad floor plan ©Bundschuh Architekten
▼屋顶花园平面图,roof garden plan ©Bundschuh Architekten
▼剖面图,section ©Bundschuh Architekten
Project Name: Block + Void House
Architecture Firm: Bundschuh Architekten
Website: www.bundschuh.net
Firm Location: Berlin, Germany
Completion Year: 2017
Gross Built Area: 1100 m2
Project location: Michaelkirchstrasse 12, Berlin, Germany
Lead Architects: Bundschuh Architekten
Photo credits: Laurian Ghinitoiu
Photographer’s website: https://www.laurianghinitoiu.com
Photographer’s e-mail: contact@laurianghinitoiu.com
Additional Credits
Design Team: Roger Bundschuh, Yannis Efstathiou, Michelle Gross , Fabian Schwade, Philipp Ockert
Clients:
Engineering: ifb frohloff staffa kühl ecker (structural)
Consultants:
Collaborators: Energiebüro Fuetterer und Ruppmann, Berlin (Technical design)
More:Bundschuh Architekten。更多关于:Bundschuh Architekten



































