非常感谢 NOMO STUDIO 予gooood分享以下内容。
Appreciation towards NOMO STUDIO for providing the following description:
场地位于西班牙梅诺卡岛(Minorca)的东北海岸线上,能够俯瞰大海壮丽的景色。地块陡坡与场地规定使得住宅的选址非常有限。为了避免被前面的房子遮挡视线,住宅设置在地块的最高处,主入口位于二层。为了进一步保证住宅清晰的观景视角,传统住宅的布局模式被推翻,白天活动的区域位于二层,卧室位于首层。只有主卧室位于顶层,业主希望能够拥有有一个可以轻松开启或封闭的夏季住宅,可能只有业主夫妇会在周末到这里暂住。建筑设计回应了这一需求,住宅可以看做是一个单层的loft,延伸出供业主孩子及客人使用的空间。
The plot is located on the northeast coast of Minorca, Spain, with a magnificent view over the sea. The steep inclination of the plot together with the site regulations made the positioning of the house very limited. In order to avoid the house in front blocking the views, the house was pushed back to the highest point of the plot and the main entrance was located on the first floor.To further guarantee this clear view, the traditional program was flipped so that the dayarea is located on the first floor and the bedrooms on the groundfloor. Only the master bedroom can be found on the top floor, responding to the clients request to have a summer house easy to open and close for short weekend stays where maybe only the couple lives there. In this way, the house can be understood as a single level loft with an extension for their children and guests bellow.
▼海岸陡坡场地中的住宅,house in a steep inclination plot along the coastline
海景立面的开放性与侧面、背面的封闭性形成强烈的对比,构成一个强有力的框景效果。为了进一步加强这种形态,屋顶从后部向前部景观面抬高、开放,整个前部立面使用大面积的落地玻璃滑动窗。屋顶使用了通常在工业建筑中才会出现的预制空心板,能够覆盖11m大跨度的露台且不使用柱子,保证观景视线的连续性。一块完整的预制板从屋顶上拆卸下来,形成无框天窗,自然光线照射到没有窗户的后部空间。立面使用现浇混凝土,这是一种零维护材料,在梅诺卡岛(Minorca)高湿度、含盐高的极端气候下能够长时间保证建筑美感。住宅灰白色的立面与周围赭石色和赤红色的土壤融合在一起,一道垂直条纹浮雕围绕整个立面,统一协调所有的门窗。
The strong contrast between the openness of the sea-view facade and the opacity of the side and back facades create a strong framing effect. To further enhance this gesture the roof is inclined opening up towards the view and the whole front facade is glazed from floor to ceiling with large sliding windows. Using prefabricated hollow core slab for the roof, usually found only in industrial buildings, allowed us to create a 11m large span to cover a column free terrace with completely undisturbed views. One whole prefabricated element was removed from the roof creating a large frameless skylight that brings light to the windowless back. In site concrete was chosen for the facade as a zero maintenance material that would age beautifully in Minorca’s aggressive climate of high humidity and extreme salt levels. The house’s off-white facade blends in with the ochre and terracotta coloured soil that surrounds the house. Finally, a band of vertical striped relief goes around the façade organizing all windows and doors.
▼正面使用大面积滑动玻璃落地窗,混凝土作为主要材料,the whole front facade is glazed from floor to ceiling with large sliding windows and concrete is the main facade material
▼住宅正立面朝向海景开放,the front facade opens towards the sea
▼屋顶使用预制空心板,保证11m跨度的露台不使用柱子,prefabricated hollow core slab for the roof allowed designers to create a 11m large span to cover a column free terrace
▼侧部、后部立面的封闭性与正面形成强烈对比,突显框景感觉,the opacity of the side and back facades created strong contrast with the front and enhanced a strong framing effect
▼垂直浮雕统一建筑门窗,a band of vertical striped relief goes around the façade organizing all windows and doors
厨房到起居室的空间内具有巨大的滑动落地窗,能够朝向43平方米的露台完全开敞,通常将这里用作聚会空间。主卧室有一个私人阳台,与公共露台没有任何视线联系。业主希望住宅能够保证孩子们的私密性,因此几间儿童卧室都有私密的洗手间、露台及供他们自己使用的起居室,为年轻人提供私密与公共活动的空间。
▼二层入口空间,entrance on the first level
From the kitchen and livingroom there are large sliding windows that can open up to a 43 sqm large covered terrace where gatherings often take place. The master bedroom has a private balcony with no visual connection to the common terrace. The client wanted a house that could give privacy for their children, thus the children’s bedrooms all have their individual private bathrooms and terraces plus an extra livingroom only for them. This gives a mix of private and common areas only for the youngest.
▼厨房到起居室空间内有巨大的滑动落地窗,能够朝向43平方米的露台完全开敞,from the kitchen and livingroom there are large sliding windows that can open up to a 43 sqm large covered terrace
▼露台景观,landscape view from the terrace
▼室内楼梯空间,interior stairs space
▼温暖灯光的建筑夜景,house with warm light at night
▼树林中的住宅夜景,night scene of the house among trees
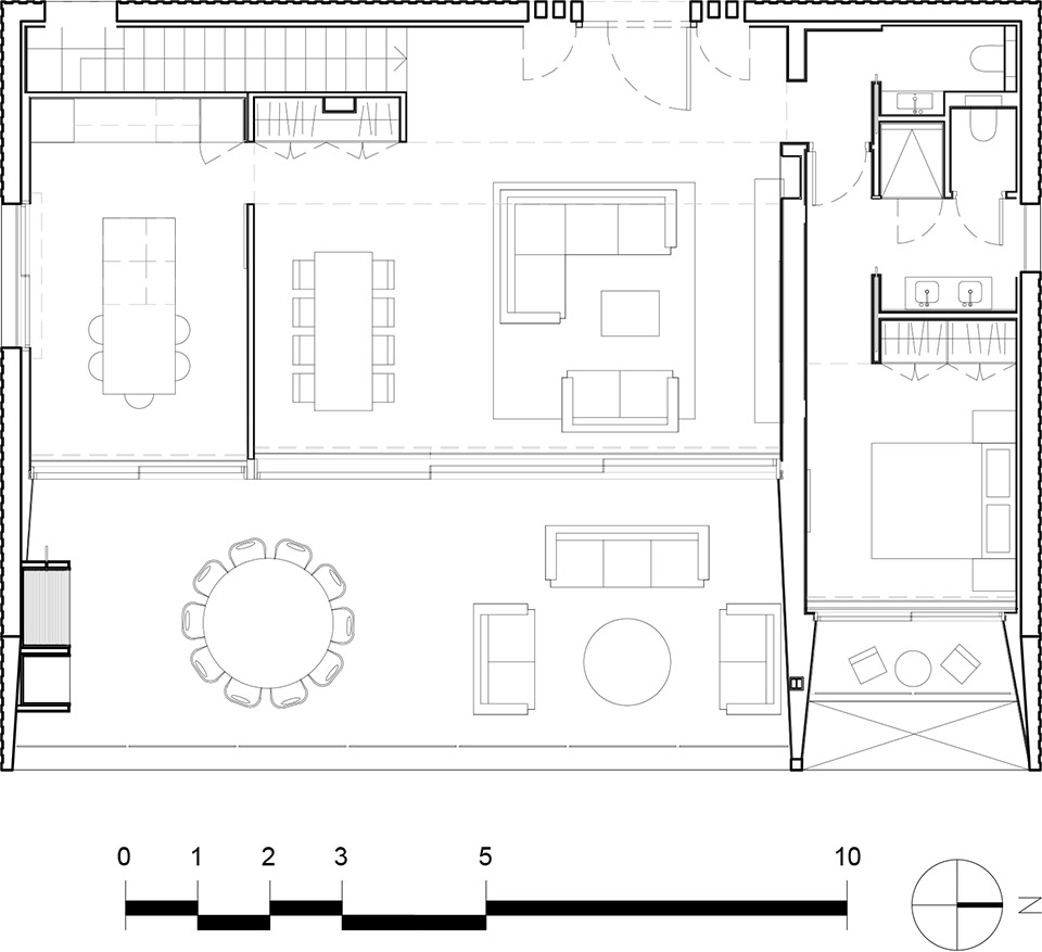
▼首层平面,ground floor plan
▼二层平面,first floor plan
▼正立面,front elevation
▼后部立面,back elevation
▼侧立面,side elevation
CREDIT LIST
PROJECT: Single-family house
TYPE: Commission
CLIENT: Private
COLLABORATORS: Structure e2A, Juan Mora SA and Gaimo, Francesc Sbert
SIZE: 300 m2
LOCATION: Minorca, Spain
Partner-in-Charge: Alicia Casals
Project Leader: Alicia Casals
Team: Karl Johan Nyqvist, Jordi Ribas, Mira Botsewa, Jennifer Mendez
Photography: Adrià Goula
More:NOMO STUDIO































