非常感谢 天津华汇工程建筑设计有限公司 对gooood的分享。更多关于:HHDesign on gooood
Appreciation towards HHDesign for providing the following description:
十年前,中国建筑学会在4·14玉树地震重建的繁多工作中,组织邀请了中国最优秀的建筑师团队针对玉树州的十个工程进行重点设计,周恺总建筑师带领的华汇设计团队接到的任务是设计位于结古镇中心的格萨尔广场。对于这个在多方面有着特殊意义的项目,设计是内敛的,建筑与自然环境、地域文化、建造方式是相融的。
Ten years ago, the Architectural Society of China organized and invited the most excellent architects team in China to focus on designed ten projects of Yushu Tibetan Autonomous Prefecture from the various reconstructed workings after the earthquake happened at Yushu on April 14th, and the target of Huahui Design team led by the general architect Mr. Zhou Kai was to design the Gesar Square located at the center of Gyegu. The architect was restraining in the design to this project with special meaning in many ways and the square should be integrated with the natural environment, regional culture and construction mode.
▼鸟瞰,aerial view ©魏刚
建筑与自然环境 | Building and Natural Environment
青海位于我国西部,是“世界屋脊”青藏高原上的重要省份之一,境内山脉高耸,地形多样,河流纵横,湖泊棋布,极具原始、自然的风貌,世人对青海多有“大美”之誉。玉树平均海拔在4200米以上,是国内少数未被大规模开发的土地之一,周围有三座神山,江水在山之间的缝隙里流下来,在这里汇合,形成城市。大自然与这片土地亿万年的对话造就了玉树拙朴的风貌,苍健的体魄。
▼模型照片,project model ©周恺
▼规划设计,design concept ©HHDesign
Qinghai Province locates at the west of Chine as one of the most important provinces of Qinghai-Tibet Plateau-the “roof of the world”. The mountain ranges in the province are high, and the terrain is various with vertical and horizontal rivers, scattered lakes over the provinces, which extremely is the original and natural style and features. People always have “great beautiful” praise to Qinghai. The average elevation of Yushu is over 4200m, which is one of the cities with most lands not to be developed in large scale in domestic. There are three mountains around this city and the river water flow down from the gap between mountains to form the city as a confluence. The simple and unadorned style and feature of Yushu with powerful feeling is caused by the natural environment on this land over thousands and millions years.
▼从广场北侧看格萨尔王雕像,view to the King Gesar Status from the square ©魏刚
▼从广场北侧看规划展览馆、档案馆北侧外景,north elevation of the King Gesar Culture Exhibition Building and the Archive ©魏刚
▼规划展览馆入口外景,entrance facade of the Exhibition Building ©章宁
在这样的自然环境下,我们能做的就是弱化建筑,甘当配角,尽可能保留这份原始而深沉的气质。因此,建筑被拆分为两大部分,广场中间是抬高的格萨尔王雕像和格萨尔王文化展示馆,相当于一个中心点;广场南侧是一组长条形建筑,以功能性用房为主,形成一条边线。项目整体一点一线,简洁有力。除了雕像下的基座,建筑上几乎没有任何雕饰,整体创造出粗拙的感觉。在大山之中,建筑和雕像更大气,与大自然融为一体,形成有气势的“大美”之感。
▼剖面图,sections ©HHDesign
Under such natural environment, the only works that architects could finish are to weaken the buildings as the supporting part to retain such original and deep style and feature as possible. Thus the architect divides the building into two parts, in which in the middle of square is the elevated King Gesar Status and the King Gesar Culture Exhibition Building as one central point; on the south of square, a long bar-type building locates as the functional buildings to be a side boundary. The project is formed in one point and one line, simply and powerfully. Except the foundation support under the Status, there is hardly any gingerbread on the building to make the crude feeling in overall. The building and status are more magnificent in the mountains to be integrated in the natural environment with forming the overwhelming feeling of “great beautiful”.
▼建筑呈现出“粗拙”之感,与周围环境融为一体,the building shows a crude feeling and is integrated to its surroundings ©魏刚
▼从广场北侧看规划展览馆、档案馆之间的通道,the passage between the Planning Museum and the Archive ©章宁
▼从西南角规划展览馆、档案馆外景,view to the Planning Museum and the Archive from southwest ©章宁
建筑与地域文化 | Building and Regional Culture
格萨尔王是藏族人民引以为傲的民族英雄和精神信仰。地震之前,当地居民就为了纪念他而建了原格萨尔广场,用以转经及其他宗教活动。地震后,广场遭到破坏,格萨尔王骑马的雕像被保护起来。为了还原当地居民的精神寄托,尊重当地的宗教文化活动,我们认为在新的设计中,建筑在雕像的面前也应该是一个配角。
King Gesar is a proud national hero and spiritual belief of the Tibetan people. Before the earthquake, the local habitants constructed the original King Gesar Square in memory of him to use for turningscripture and other religious activities. After the earthquake, the square was destroyed and the status of King Gesar on horse was protected. In order to restore the spiritual ballast of local inhabitants, and respect the local religious culture activities, the architects believed that, the buildings should be a supporting part in front of the Status in new design.
▼朝神山和格萨尔王雕像打开的广场,the square opens to the sacred mountain ©魏刚
格萨尔王雕像被原角度、原位置抬高,放在高度近7米的双层方形基座上,使之成为视觉与精神的“高点”。基座下是格萨尔王文化展示馆,四周的台阶呈圆形放射布置。这一组建筑作为广场的绝对中心,也借鉴了佛教里象征宁静安详、吉祥如意的曼荼罗图案——“坛城”,建筑周围形成完整、平缓的转经道,方便藏民“转经”。
▼坛城概念示意,the “Mandala” concept ©HHDesign
The King Gesar Status is elevated on the original location from original angle to be placed on the double layers of square foundation support nearly 7m high as the “height point” of vision and feeling. Under the foundation support is the King Gesar Culture Exhibition Building and the steps surrounding are arranged circle out. The group of this building is the absolute center of the square by virtue of the “Mandala” in the Buddhism, which shows the peace and serene, good luck and happiness. The complete and gently circumambulation is formed around the building so that the Tibetan could turn scripture easily.
▼格萨尔王雕像成为视觉与精神的“高点”,The King Gesar Status is elevated on the original location as the “height point” of vision and feeling ©魏刚
建筑与精神场所 | Building and Spiritual Place
藏区有很多神奇的地方,比如光线,不经意间出现的一道光,穿透云层照射在某处,就放佛天上的神灵在对世间进行指引,极为震撼。这个项目中也很注重对光的利用。
在广场南侧的建筑群中,将主入口压低,在入口门厅上方开设了一条60公分宽、16米长的缝,虽然在进入建筑后,整体的感受是暗的,但是顶部的这条缝将对比极为强烈的天光引入进来,既形成了行为方向的指引,又给人形成了极强的心理感受。顺着光线向前走,在门厅的尽端打开细高的门洞,正对着是格萨尔王的雕像,虽然看到的是雕像背面,但整体明亮,视觉效果非常强烈,使人感觉从人性的尺度中上升到神性的空间。
There are many magical phenomenons in Tibetan area such as the light rays; and any streak of light appeared obliviously shine somewhere through the clouds that seems the gods of heaven guide the people on the world, which is extremely shocking. Thus the architect pays attention to use the light rays in design.
In the buildings group on the south of square, the architect reduces the height of main entrance and opens a seam in 60 centimeters wide and 16 meters long on the upper of entrance hall to. People feel dark even though entering into the building, but the upper seam brings the extremely strong daylight into the building, which not only is the guidance to the activities direction, but also is to form a strong mental feeling to people. Walking along with the daylight, people could open the drawn-up doorway at the end of hall, which is over against the King Gesar Status. Even though people watch the back of status, the hall is completely bright with strong visual effect and people could feel to rise to the space of god from human. Such utilization to the daylight shows many times in buildings.
▼规划展览馆入口外景,entrance to the Planning Museum ©章宁
▼从规划展览馆入口内看格萨尔王雕像,view to the status from the entrance ©章宁
建筑与地方建造 | Buildings and Local Construction
玉树地区经济技术相对落后,且本身是援建项目,所以找到切实可行、经济耐用的建造手段对项目的成败至关重要。建筑采用钢筋混凝土结构,至于饰面,藏地民居给了我们很大的启发。材料就地采自玉树周边的山上,大块的石头稍加加工便可成为片石,再将这些加工成片的石材 “垒”起来,很像是巨型的但未写经文的“玛尼石堆”。垒石的工人就是当地的藏民,用的方法也是自家民居垒砌的方法。这种简单有效的方法,既保证了后期施工和完成效果,又形成与神山的色调融为一体自然感受。
▼倾斜的墙体,the inclined walls ©魏刚
Due to that the economic technologies in Yushu area lag behind relatively, and the project also is the reconstruction item so that any feasible and economic and durable construction method found is vital to the success of the project. The building is constructed by the reinforced concrete structure and the Tibetan inhabitants inspire the architect greatly in decorative surface. The materials are derived from the mountains around Yushu and large stones could be cut into the flagstone by slight processing. And those processed flaky stones are “piled” up like the huge “Marnyi Stone Piles” without the scriptures writing. The workers piling up the stones are local Tibetan with using their method to pile like building own house. Such simple and effective method not only ensures the later construction and completion effect but also forms an integrated natural feeling with the color of mountain.
▼墙体细部,wall details ©魏刚
▼院落,courtyard ©魏刚
▼窗户细部,opening details ©魏刚
▼广场上的藏民,local residents on the square ©章宁
▼格萨尔王广场总平面图,site plan of the Gesar Square ©HHDesign
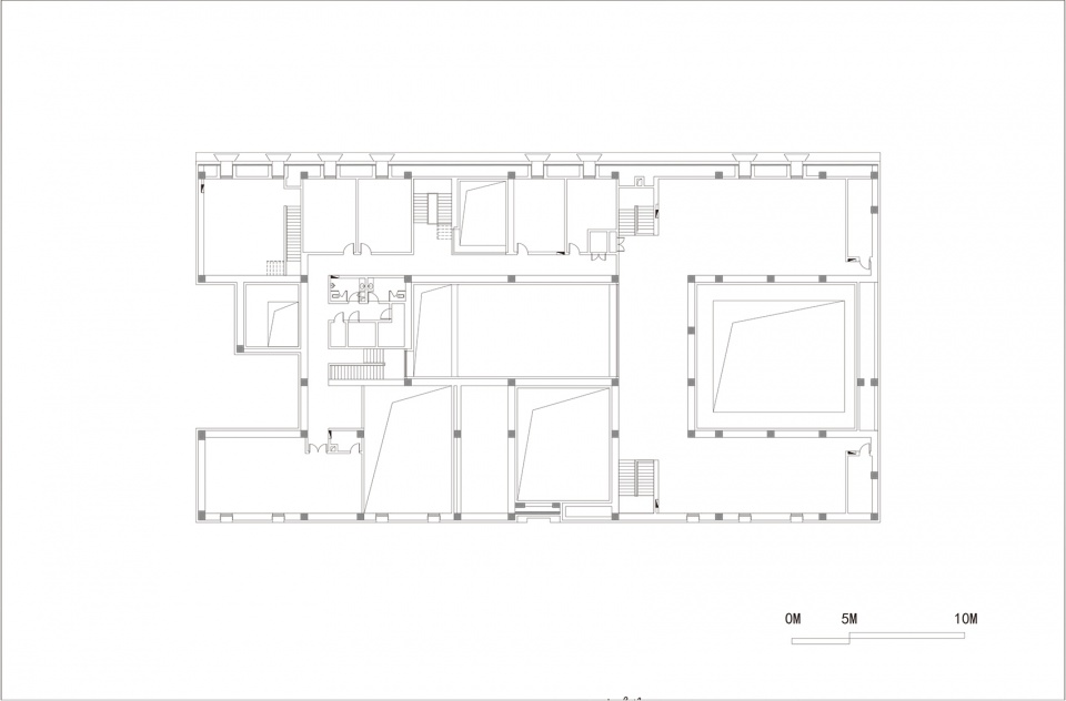
▼格萨尔王文化展示馆首层平面图,ground floor plan of the King Gesar Culture Exhibition Building ©HHDesign
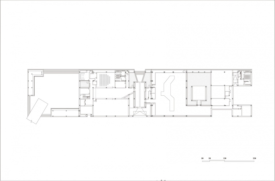
▼规划展览馆首层平面图,ground floor plan of the Planning Museum ©HHDesign
▼档案馆首层平面图,ground floor plan of the Archive ©HHDesign
设计单位:天津华汇工程建筑设计有限公司
建筑师:周恺、吴岳、章宁
设计:2010
竣工:2013
用地面积:6.93 hm²
总建筑面积:8200㎡
建筑层数:地上一层,档案馆局部二层,地下一层
业主:玉树州三江源投资建设有限公司
设计团队:李悦谦、魏平、高士奇、邵海、朱皓、王裕华、赵贺威、张一 、张大力、朱元、周鹏等
基地面积:6.93 hm2
建筑面积:8200 m2
结构形式:钢筋混凝土框架结构
文字:吕俊杰
摄影:魏刚、周恺、章宁
More:天津华汇工程建筑设计有限公司。更多关于:HHDesign on gooood







































