感谢 ATMOROUND 对gooood的分享。
Appreciation towards ATMOROUND for providing the following description:
ilil是一间位于城郊的咖啡厅。店里的常客虽然对新潮的生活方式略有抗拒,但仍对新鲜事物感到好奇。熟悉的环境往往让人感到舒适,却又稍显乏味;新奇的事物虽然可以赋予生活新鲜感,但也让人感到隐隐的不安。本次项目的主旨,即是在两者之间维持一种相对的平衡。
Located in suburb, customers of ilil coffee store are intrigued by what is on trend even when they are rather hesitant to apply the new trend to their lives. Being surrounded by familiarity can make us feel comfortable, but can be dull; newness can give fresh touch to our lives, but it may provide discomfort. The main theme of this project was to keep the balance between the two and to make the familiar feel unfamiliar and to make the unfamiliar feel familiar.
▼店铺外观,project appearance © Park woo-jin
项目的首要任务是找到事物的本质,然后从中得到新的灵感。设计师不断地重新审视自己的想法,向顾客展示不同的视角,鼓励他们展开胸怀,尝试新鲜事物。
The priority of this project was to find the essence of things; being able to see what can be created out of the essence regardless of what it was made to be. Designers constantly reexamined their ideas to show customers different perspectives, and this enabled customers to embrace new ideas into their daily lives.
▼项目模型,model © ATMOROUND
由于店铺靠近居民区,引入家的特征成为了设计的关键。客厅的沙发、窗帘、窗户、餐桌、带窗的房间等熟悉的家庭因素被以新的视角带入设计中。室内的整体结构发生了变化,但外立面的结构和墙面涂料保持不变,以保持空间的自然气息。使用了碎石的内外部空间,让项目整体看起来更具统一性。
As it being near residential area, bringing in the features of home was key to the design. Familiar factors of home such as the couch of living room, curtains, windows, dinner table, and room with window were brought into the design in a new perspective. The overall structure of the inside was altered but the structure of the façade and the wall paint remained untouched to keep the natural vibe to the space. Crushed stones were used both inside and outside; this provides a cohesiveness to the design where inside feels like outside and vice versa.
▼透过窗户看向咖啡厅内部,
look through the window into the cafe © Park woo-jin
▼从入口看向吧台,view from the entrance to the bar © Park woo-jin
吧台被设计成餐桌,咖啡师可以在这里与顾客交流。Moka咖啡壶被放在桌前的炉灶上,顾客可以看到那些平常在家里使用的东西是如何被用于其他用途的。操作台与桌面的中间区域填满了砾石,装饰着鲜花和小树。来自大自然和家庭的材料,更新了顾客以往在咖啡馆的体验。看似新鲜的东西,竟是来自于人们的日常生活和周围环境,这对顾客来说是一种惊喜。
▼内部空间概览,overview of internal space © Park woo-jin
The coffee bar was designed to act as a dinner table where baristas can communicate with their customers. The coffee maker, Moka pot, is placed on the stove in front of the table for customers to see how things they used in their homes can be used in other ways. In the middle of the table where the work table and the bar meet is the gravel-filled middle space decorated with flowers and a small tree. Materials from the nature and home were used to freshen up customers’ experience at the cafe. What seems new came from of our daily lives and surroundings, and this comes as a pleasant surprise to customers.
▼操作台和吧台细部,work table and bar details © Park woo-jin
与大多数亚洲房屋一样,沙发靠墙摆放,面对着宽敞的居住空间。沙发由带有缓冲坐垫的硬质混凝土制成,可为顾客提供舒适的就坐体验。用木质装饰物来代替窗帘,则为空间增添了几分趣味。
▼背靠水泥墙的座位区,seating area backed by a concrete wall © Park woo-jin
▼通往沙发区域的水泥台阶,cement steps to the sofa area © Park woo-jin
The sofa was arranged against the wall, facing the wide living space as in most of the Asian houses. However, by having the sofa made of hard concrete with cushions for comfortable sitting and replacing the curtain with the wooden molding added a fun twist to the space.
▼独特的木制幕帘卡座区,unique wooden curtain booth area © Park woo-jin
室内外空间的接界限十分模糊,顾客从店外走近店内,会产生一种莫名的熟悉感。黄色的平顶锥体形桌子也是看清事物本质而不拘泥于其原有用途的例子之一。 这样一个引人注目的形状和元素,采用了真正的塑料停车锥和用于沉积混凝土的板来作为模具打造而成。
Interior was filled with factors from the outside and what normally stays inside was placed outside. Doing this blurs the line between the concept of inside and outside. Customers coming into the store as they walk from the outside can familiarize with the space easily due to this blurred distinction. The yellow flat-top cone shaped table is also one of the examples of seeing the essence of things rather than being confined to its original usage. It was an eye-catching element in that an actual plastic parking cone and a plate for depositing concrete were used as molds to create this specific shape of table.
▼黄色平顶锥体形桌,the yellow flat-top cone shaped table © Park woo-jin
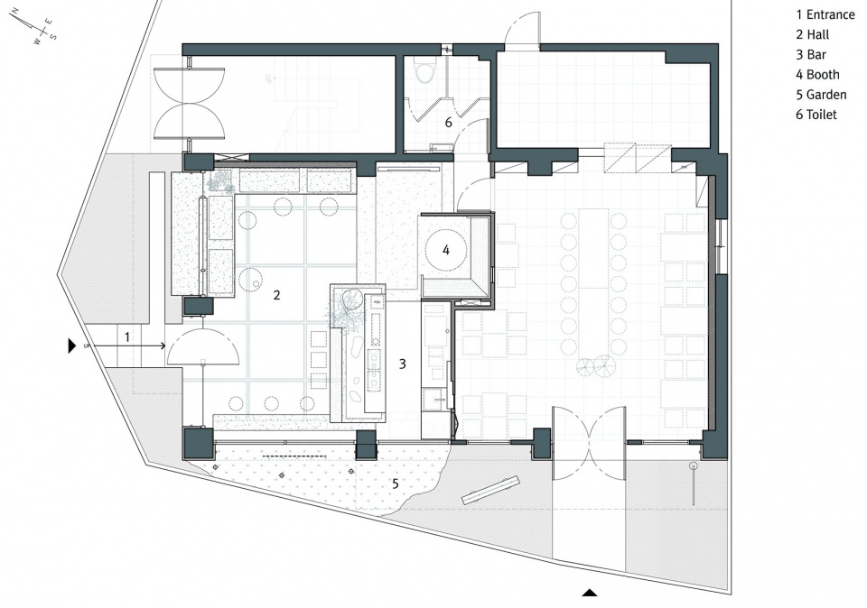
▼项目平面,plan © ATMOROUND
Project name: ilil coffee
Architecture Firm: ATMOROUND
Completion Year: 2019
Gross Built Area: 52.4sq.m.
Project location: 59, Jinjae-ro 55beon-gil, Heungdeok-gu,
Cheongju-si, Chungcheongbuk-do, South Korea
More: ATMOROUND
























