感谢 Architekti B.K.P.Š. 予gooood分享以下内容。更多关于他们:Architekti B.K.P.Š. on goo00d
Appreciation towards Architekti B.K.P.Š. for providing the following description:
此项目扩建自一幢乡村砖厂的一部分,砖厂自十九世纪中叶被修复后成为前砖匠的住宅。砖厂10年前改成工作室前曾是一片废墟。第二次世界大战后,砖厂停止生产,场地被改建成一个果园。
The extension is part of a set of buildings on the site of a former village brickyard. It is added to the existing house of a former brickmaster – this house was restored in the mid-nineteens. The brick kiln, which was in a ruinous state, was rebuilt into a studio 10 years ago. After the WWII, when the production of bricks was closed, an orchard was set up on the site.
▼项目外观,exterior view ©(up) Tomáš Manina, (down)Pavol Paňák
砖瓦匠原有的住宅是典型的门廊式乡村住宅,带有倾斜的屋顶。门廊式住宅在当地是相当明智的建造策略。门廊设置在建筑纵向主体块一侧,是连接起建筑室内外空间的实用性结构,不仅能对这个使用者频繁进出的空间起到保护作用,还能调节夏季和冬季进入这个砖砌建筑的阳光。
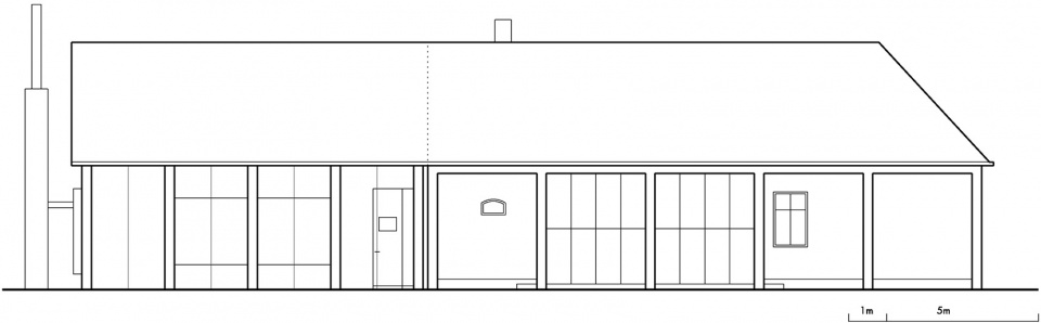
▼建筑立面,带有倾斜的屋顶,elevation, house with pitched roof ©Tomáš Manina
The original brickmaster´s house was a typical portico country style with pitched roof. Portico house was actually a wise scheme – as vernacular houses used to be. Portico attached to the longitudinal main volume was a distinctive and practical feature on interface of exterior and interior of the house. Apart from natural protection of this frequented zone it regulates different effects of summer and winter sunshine energy on the mass of the masonry.
▼门廊,portico ©Tomáš Manina
项目中扩建的部分是在现有住宅和门廊轮廓上延伸而来,遵循了现有的交叉结构,但又在内部创造出完全不同理念的空间。扩建建筑中没有像通常的建筑一样用天花板分隔出居住区及阁楼区,而是采用了开放式布局。因此,新的起居空间获得了较为宽敞的空间体验。
▼场地平面,master plan ©Architekti B.K.P.Š.
Extension is actually a prolongation of the silhouette of the existing house inclusive its portico. It subordinates to the existing cross-figure, but inside it is a radically different space concept. It is an open space scheme without the usual ceiling separating living area from the attic. The new living room of modest floor area is equipped with generous space experience.
▼宽敞的起居空间,living room with generous space experience ©Tomáš Manina
建筑大型的屋顶桁架结构大大改善了该建筑的蓄热特性,从根本上减少了室内热能的变动,缓解了桁架结构通常需要面临的能源问题。可闭合的玻璃门廊成为缓冲区,在一年中的大部分时间里调节气候的影响。扩建的建筑是对手工砖制工艺的一种致敬。
Massive roof truss structure improves substantially the accumulation characteristics of this building. It does radically reduce the thermal fluctuation in the interior, which is a classical difficulty of the usually constructed roof trusses. Closable glased portico serves as a buffer clima zone for most of the year. This extension is a particular homage to the culture of a craft of brickmaking.
▼建筑屋顶的大型桁架结构,massive roof truss structure ©Tomáš Manina
屋顶桁架采用了较为常见的建造策略,即由两个倾斜的平板互相支撑而成。桁架内所用的砖块均进行了产地标记,其中超过2/3的砖块来自于原砖厂,其余的来自于周边地区消失的砖窑。这种屋顶桁架上装饰性的类马赛克材料拥有不同的阴影深度和粗糙的肌理,这是手工砖的典型特征。一间Empora画廊被安置在现有建筑与拓展建筑之间,与阁楼相连。
The roof truss could be interpreted as a scheme of typical rafter construction or as a structural scheme of two mutually supportive sloping slabs. All the bricks used in the roof truss are marked after their origin. More than 2/3 had been manufactured by this former brickyard, the rest originates from the vanished brick kilns of the nearby region. Decorative mosaic like appearance of this roof truss is derived from different shades and ragged surfaces, which are typical for handmade bricks production. Empora gallery is inserted in the dividing line of the existing house and its new extension – it serves as a connection to the existing attic.
▼ 砖块上均有产地标记,构成粗糙的肌理,bricks are marked after their origin creating ragged surfaces ©Tomáš Manina
▼屋顶细部,detail of the roof ©Pavol Paňák
砖墙的内部和外部都涂有石灰石膏,但表面没有涂层。扩展空间中使用的其他材料也都没有经过进一步的表面处理,如Empora画廊的混凝土地板,门廊柱和烟囱的预制混凝土块,钢梁和型材等等。从某种意义上说,设计师希望保留一种“未完工”的建筑风格。
The walls made of brick blocks are outside and inside plastered with classic lime plaster without top coating. Other materials of this extension are also left without further surface treatment – concrete of the floor and of empora, precast concrete blocks of the portico columns and of the chimney, steel beams and profiles etc. In certain sense it is a finished-unfinished building.
▼ 砖墙上涂有石灰石膏,但没有表面涂层,留有“未完工”的质感, brick walls are plastered with classic lime plaster without top coating, leaving unfinished texture ©Tomáš Manina
▼ 夜晚的住宅,house at night ©Tomáš Manina
▼ 屋外的烟囱采用预制混凝土块,precast concrete blocks of the chimney ©Tomáš Manina
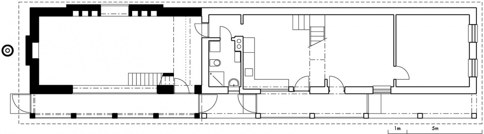
▼建筑平面,plan ©Architekti B.K.P.Š.
▼建筑立面,elevation ©Architekti B.K.P.Š.
▼建筑剖面,section ©Architekti B.K.P.Š.
▼建造细节,construct detail ©Architekti B.K.P.Š.
General Information
Project Name: Extension of an old family house
Architecture Firm: Architekti B.K.P.Š. author Pavol Paňák
Website: www.bkps.sk
Contact e-mail: architekti@bkps.sk pavol.panak@bkps.sk
Firm Location: Architekti B.K.P.Š., Nobelova 34 – Vodná veža, Bratislava, Slovakia
Completion Year: 2018
Gross Built Area: 54 m2
Project location: Čachtice, Slovakia
Lead Architects: Pavol Paňák, Martin Kusý st.
Lead Architects e-mail: pavol.panak@bkps.sk martin.kusy.st@bkps.skMedia Provider
Photo credits: Tomáš Manina
Photographer’s website: www.tomasmanina.com
Photographer’s e-mail: tomas.manina@gmail.com
Additional Credits
Design Team: Pavol Paňák, Július Vass, Beáta Paňáková
Clients: Pavol Paňák
More: Architekti B.K.P.Š. 更多关于他们:Architekti B.K.P.Š. on goo00d




















